





















ΞΕΝΟΔΟΧΕΙΟ SOPHID WELLNESS SUITES KARPATHOS
Γενικά για το οικόπεδο
Βρίσκεται στην πλαγιά πάνω από την γνωστή και αναπτυγμένη τουριστικά αμμοοπή παραλία Αμμοοπή της Καρπάθου.
Το γήπεδο έχει έκταση 10.179,73τμ. έχει ανάγλυφο του εδάφους με κλίση προς την θάλασσα με ανατολικό – νοτιοανατολικό προσανατολισμό προσφέροντας μοναδικές θέες προς το πέλαγος.
Παλαιά η γη της ιδιοκτησίας όπως μαρτυρούν οι ανάλημματικοί τοίχοι που υπάρχουν, ήταν καλλιεργούμενη, σήμερα όμως κατά τη βεβαίωση της δασικής υπηρεσίας είναι χέρσα.
Η πρόσβαση στο γήπεδο γίνεται μέσω δημοτικού χωματόδρομου που έχει μεταβαλλόμενο πλάτος μεγαλύτερο των 6,5 μ.
Η απόφαση της ιδιοκτήτριας εταιρίας είναι να προχωρήσει στην αξιοποίηση της γης με την ανέγερση σε αυτήν ξενοδοχείου τύπου επιπλωμένων διαμερισμάτων τεσσάρων αστέρων.
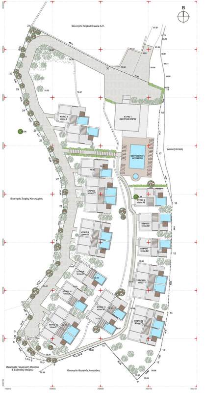
ΑΡΧΙΤΕΚΤΟΝΙΚΗ ΣΥΝΘΕΣΗ
Προκρίθηκε η μορφή συγκροτήματος οικίσκων για τη δημιουργία ενός ξενοδοχείου συνολικά είκοσι διαμερισμάτων των δύο χώρων και δυναμικότητα σε κλίνες εξήντα, γιατί με τον τρόπο αυτό γίνεται καλλίτερη προσαρμογή στο άμεσο φυσικό περιβάλλον.
Στο σημείο εισόδου στο γήπεδο στην βορειανατολική του γωνία, χωροθετήθηκε το κεντρικό κτίριο.
Πρόκειται για ισόγειο κτίριο με υπόγειο όπου στο ισόγειο σε μία ενιαία αίθουσα υπάρχουν τα σαλόνια υποδοχής και η αίθουσα εστιατορίου και μπαρ.
Σε άμεση επαφή με τον πάγκο της ρεσεψιόν, υπάρχει το γραφείο διοίκησης με το κεντρικό χρηματοκιβώτιο, το τηλεφωνικό κέντρο και την κονσόλα ελέγχου των λειτουργιών.
Σε κεντροβαρή χώρο ανάμεσα στο εστιατόριο και τα σαλόνια τοποθετούνται οι κοινόχρηστες τουαλέτες των πελατών.
Στο υπόγειο όπου η πρόσβαση γίνεται από αυτόνομη- ανεξάρτητη είσοδο διαμορφώνονται οι χώροι για αποδυτήρια προσωπικού, αποθήκες, ψυκτικούς θαλάμους και πλυντήριο σιδερωτήριο της μονάδας.
Στον προαύλιο χώρο υπάρχουν θέσεις στάθμευσης για αυτοκίνητα επισκεπτών, πελατών και προσωπικού.
Στον ακάλυπτο χώρο νότια του κεντρικού κτιρίου διαμορφώνεται η κεντρική κολυμβητική δεξαμενή του συγκροτήματος.
Για την καλύτερη λειτουργικά οργάνωση του χώρου ο πάγκος του μπαρ επεκτείνεται στην βεράντα του κεντρικού κτιρίου προς την πισίνα ώστε να μπορεί να λειτουργεί και ως poolμπαρ τις ώρες που αυτό απαιτείται.
Τα διαμερίσματα που απαρτίζουν το ξενοδοχείο είναι όλα δύο χώρων και είναι τυπικής κάτοψης. Αποτελούνται από υπνοδωμάτιο με ενσωματωμένο χώρο λουτρού που διαθέτει ιδιαίτερο χώρο απομονωνόμενης τουαλέτας, χώρο καθιστικού με ενιαία διαμορφωμένη γωνία κουζίνας και φαγητού. Επειδή συνήθως ο χώρος του καθιστικού λειτουργεί και ως επιπλέον χώρος ύπνου προβλέπεται επιπλέον χώρος υγιεινής για το χώρο αυτό. Προσαρμογές έχουν γίνει στην διαμόρφωση που θα έχουν οι βεράντες με τις εξατομικευμένες πισίνες εμπρός από αυτά σύμφωνα με την φυσική υφιστάμενη διαμόρφωση του ανάγλυφου του εδάφους. Υπάρχουν τύποι οικίσκων με ένα, δύο και μέχρι τρία διαμερίσματα, όλοι όμως ισόγειοι.
Η θέα προς την θάλασσα εξασφαλίζεται από όλους τους χώρους καθώς η επικλινής επιφάνεια του εδάφους παρέχει τη δυνατότητα ανάλογης διαμόρφωσης.
Οι παρεχόμενες υπηρεσίες στη μονάδα συμπληρώνονται με ένα χώρο ευεξίας spaο οποίος διαμορφώνεται κάτω από υπερυψωμένο ισόγειο ενός οικίσκου με εκμετάλλευση της έντονης κλίσης στο σημείο εκείνο και αποτελείται από δύο αίθουσες μασάζ , αίθουσα ατμού- χαμάμ, αίθουσα χαλάρωσης και στεγασμένη δεξαμενή υδρομασάζ, ενώ θα υπάρχει και η απαραίτητη υποδοχή με χώρο αναμονής και αποδυτήρια ανδρών γυναικών.
Μία αίθουσα φροντίδας παιδιών διαμορφώνεται κάτω από τον άμεσο προς νότο της κεντρικής πισίνας οικίσκο, ώστε να συνδυαστεί στον αύλοιο χώρο του παιδική χαρά και παιδική πισίνα σε προστατευμένο σαφώς προσδιορισμένο χώρο.
Οι φυτεύσεις θα είναι συμπληρωματικές της φύτευσης που υπάρχει στο γήπεδο, όπου θα υπάρξει ιδιαίτερη φροντίδα να διατηρηθεί και θα είναι δέντρα και θαμνώδη γηγενή αρωματικά φυτά όπως ρίγανη, θυμάρι, δάφνες, βασιλικοί, δυόσμοι και αλισφακιές.
Οι τοίχοι διαμόρφωσης του περιβάλλοντα χώρου θα είναι ξερολιθιές και οι δρομίσκοι θα είναι από νταμαρόδεμα.




