















ΚΑΤΟΙΚΙΑ ΕΝΤΟΣ ΣΧΕΔΙΟΥ ΚΑΡΠΑΘΟΣ
ΘΕΣΗ: «Πινί» Βωλάδας Καρπάθου
ΕΡΓΟ: Δύο νέες ισόγειες οικοδομές με χρήση κατοικία και γκαράζ
Το οικόπεδο στη θέση «Πινί» της Βωλάδας Καρπάθου τέμνεται από το όριο του οικισμού Βωλάδας και κτίζεται με το εμβαδόν ενός άρτιου οικοπέδου με τους ισχύοντες όρους του οικισμού της Βωλάδας. Η υπόλοιπη έκταση ήδη καλλιεργούμενη με ελιές και οπωροφόρα δέντρα παραμένει ως εκτός σχεδίου.
Το οικόπεδο είναι διαμορφωμένο σε επίπεδα με αναλημματικούς τοίχους και προσφέρει εκπληκτικές θεάσεις της θάλασσας.
Αρχιτεκτονική λύση
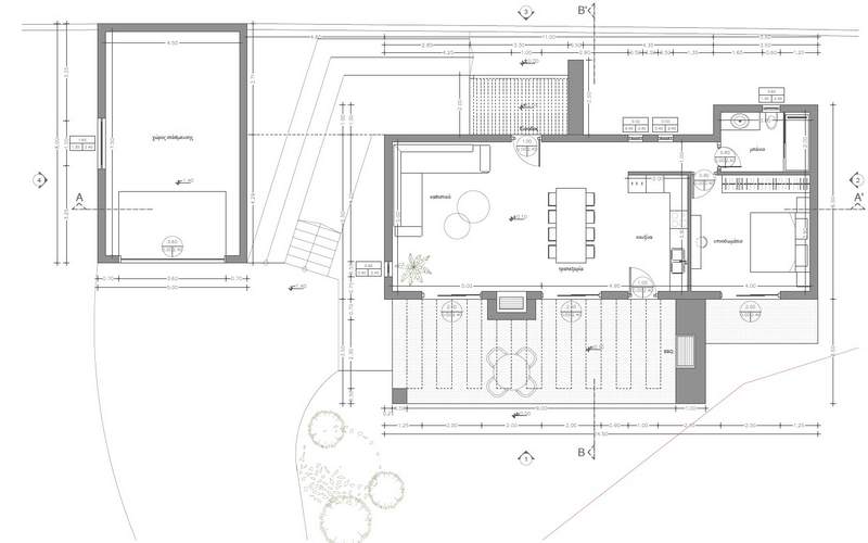
Η επιθυμία του ιδιοκτήτη είναι η κατασκευή ισόγειας παραθεριστικής κατοικίας με ενιαίους χώρους και απλή διάταξη κάτοψης όπως φαίνεται στα σχέδια. Σε διαφορετικό επίπεδο κατασκευάζεται ισόγειο κτίσμα γκαράζ βοηθητικής χρήσης.
Οι δύο ισόγειοι όγκοι τοποθετημένοι σε διαφορετική υψομετρική στάθμη ακολουθώντας το φυσικό ανάγλυφο του οικοπέδου συντίθενται αρμονικά ογκοπλαστικά.
Η ισόγεια κατοικία αποτελείται από ενιαίο χώρο σαλοτραπεζαρίας και κουζίνας με ένα λουτρό και ένα υπνοδωμάτιο.
Οργανική λειτουργική διασύνδεση του μέσα και του έξω χώρου έχει σχεδιαστεί με την πρόβλεψη στεγασμένης με πέργκολα βεράντας προς τη θέα.




